

Siegerehrung: Seien Sie mit dabei!
Wir haben im Rahmen unseres Innovationswettbewerbs zukunftsweisende Ideen für Sport- und Bewegungsräume gesucht, die den Sportraum neu denken. Nun prämieren wir die besten Ideen!
Seien Sie dabei bei der Siegerehrung! Direkt im Anschluss an den 3. Deutschen Sportstättentag präsentieren wir die besten Entwürfe – offen für alle Interessierten, ohne Anmeldung. Erleben Sie frei gedachte Innovationen, treffen Sie junge Architekturtalente, sammeln Sie Ideen und knüpfen Sie Kontakte zwischen Planung, Praxis und Wirtschaft.
Wann: 29.10.25 16:30 Uhr
Wo: FSB Messe, Congress Centrum Nord, Rheinsaal Sektion 1-4
Sport braucht Räume – und neue Ideen.
Sport und Bewegung haben für das Leben der meisten Menschen in Deutschland eine große Bedeutung. Sport und Bewegung stehen im Erleben der Menschen für Gesundheit, Fitness, Freude, Gemeinschaft, Integration, Inklusion, Leistungsfähigkeit u.v.m. Damit das so bleibt, braucht es einladende, zugängliche und zukunftsfähige Sporträume.
„Wir brauchen eine kulturell tiefgreifende Veränderung. Der Blickwinkel auf unsere Sportstätten muss sich wandeln – vom Sportfunktionalen zu einer Architektur für die Menschen.“
– Prof. Dr. Kähler, Vorsitzender der IAKS Deutschland e.V.
Im Rahmen unseres Innovationswettbewerbs wurden kreative Konzepte und Produktideen ausgezeichnet, die den Sportraum neu denken und an die Bedürfnisse unserer Gesellschaft anpassen.

Der Innovations-Wettbewerb der IAKS Deutschland e. V.
Zur Siegerehrung laden wir herzlich ein – direkt im Anschluss an den 3. Deutschen Sportstättentag.
Ohne Anmeldung, offen für alle: Entdecken Sie inspirierende Ideen, treffen Sie junge Architekturtalente, tauschen Sie sich mit Fachleuten, Kommunen und Unternehmen aus – und erleben Sie, wie die Zukunft unserer Sporträume aussehen kann.
29. Oktober 2025 16:30 Uhr
Veranstaltungsort: FSB-Messe
auf der Koelnmesse, Congress Centrum Nord, Rheinsaal Sektion 1-4
Die Grundstücke der Auslobung

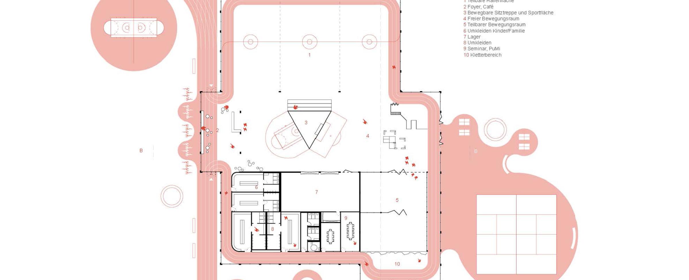
SPORTHALLE - Mannheim
Das Grundstück liegt am Rande des Ortsteils Seckenheim und wird über den Holzweg erschlossen. Das Gelände wurde früher durch die Amerikaner militärisch genutzt und liegt seit längerem brach. Ziel der Stadt Mannheim ist es, eine Feuerwache und eine Sportanlage auf dem Grundstück zu entwickeln.
SPORTHALLE - Heilbronn
Das Grundstück ist derzeit ein großes Sportfeld mit einem genormten Kunstrasensportplatz. Es liegt mitten in der Stadt, eingerahmt von Bildungseinrichtungen, Wohnhäusern, Hotel u. a. Das gesamte Sportfeld soll als Sportgelände neugestaltet werden. Die Stadt will sowohl für den Schulsport der umliegenden zahlreichen Bildungseinrichtungen, die lokalen Sport-Vereine, aber auch für das freie Sporttreiben ein modernes, vielseitiges, attraktives, innerstädtisches Zentrum für Sport, Bewegung und Gesundheit erstellen.


SPORTFREIANLAGE - Bonn
Das Grundstück liegt im Sportpark Pennenfeld im Stadtbezirk Bad Godesberg in Bonn. Der Sportpark erstreckt sich über mehr als 60.000 Quadratmetern und bietet vielfältige Sporteinrichtungen für unterschiedliche Disziplinen. Die Fläche für Ihren Entwurf ist neben dem Stadion platziert und beträgt ca 800 qm. Aktuell wird sie als ehemalige Kugelstoßanlage nicht genutzt, dies soll sich durch Ihren Entwurf nun ändern.
FREIBAD - Koblenz
Koblenz, eine Stadt mit reicher Geschichte und malerischer Lage am Zusammenfluss von Rhein und Mosel, soll um eine moderne und zukunftsweisende Attraktion reicher werden: Eine zukunftsorientierte „Freibadlandschaft". Diese soll nicht nur als klassisches Freibad, sondern auch als Ort der Begegnung, Erholung und Freizeitgestaltung für Einheimische und Touristen dienen.

KONTAKT IAKS Deutschland

Firstname
Saskya
Lastname
Welter
+49 221 168023 21
welter.deutschland@iaks.sport